What Is The Best Spacing For Recessed Lighting

Recessed Lighting Placement Recessedlighting Com Installing Recessed Lighting Recessed Lighting Placement Recessed Lighting Layout

Recessed Lighting Placement Recessedlighting Com Installing Recessed Lighting Recessed Lighting Placement Recessed Lighting Layout

Pin On Kitchen

Pin On Kitchen

Recessed Lighting Placement Google Search Recessed Lighting Bathroom Recessed Lighting Can Lights In Kitchen

Recessed Lighting Placement Google Search Recessed Lighting Bathroom Recessed Lighting Can Lights In Kitchen

Recessed Lighting Recommendations Recessed Lighting Lighting Guide Kitchen Island Lighting

Recessed Lighting Recommendations Recessed Lighting Lighting Guide Kitchen Island Lighting

Kitchen Lighting Layout Hac0 Com Kitchen Recessed Lighting Recessed Lighting Layout Kitchen Lighting Layout

Kitchen Lighting Layout Hac0 Com Kitchen Recessed Lighting Recessed Lighting Layout Kitchen Lighting Layout

Pin On Recessed Lighting Layout

Pin On Recessed Lighting Layout

Pin On Recessed Lighting Layout

Open reflector baffle or adjustable trims.

What is the best spacing for recessed lighting. Light shines down from a recessed light fixture in the shape of a cone. The distance between the lights is always double what it is at the ends. Notice how the lights are placed in.

3 to 4 of space between each light. Heres the formula for proper recessed lighting spacing. Now do the same for the width of the room.

A good general rule for placement is to divide the height of the ceiling by two. When it comes to spacing recessed lighting apart industry standard is to divide the ceiling height in half and then use that number as your spacing guide. For example recessed lighting spacing for an 8-foot-high ceiling would be 4 feet between each light.

When spacing recessed lights use this general rule of thumb. Generally lighting professionals like those at Capitol Lighting recommend following the ceiling height rule for spacing recessed lights. For example an 8-0 ceiling would have lights spaced every 4-0 on-center and a 10.

Place recessed lights about 3-feet away from the wall to avoid creating shadows that make your ceilings look lower. One thing I did not ment. It really is not a difficult process.

The recessed lights should be aligned and equally spaced across the ceiling. Below are some of the most common layouts for general lighting. The number of light units in a single row for that length N.

Recessed Lighting Layout The Recessed Lighting Blog Recessed Lighting Layout Lighting Layout Recessed Lighting

Recessed Lighting Layout The Recessed Lighting Blog Recessed Lighting Layout Lighting Layout Recessed Lighting

How To Elevate Your Living Room Decor With A Mid Century Lamp Www Livingroom Recessed Lighting Living Room Recessed Lighting Layout Kitchen Recessed Lighting

How To Elevate Your Living Room Decor With A Mid Century Lamp Www Livingroom Recessed Lighting Living Room Recessed Lighting Layout Kitchen Recessed Lighting

Grab Our Free Recessed Lighting Calculator It Tells You Exactly Where To Place Your R Recessed Lighting Layout Recessed Lighting Living Room Recessed Lighting

Grab Our Free Recessed Lighting Calculator It Tells You Exactly Where To Place Your R Recessed Lighting Layout Recessed Lighting Living Room Recessed Lighting

Recessed Lighting Guide How To Select The Proper Housing Trim Recessed Lighting Layout Lighting Guide Kitchen Recessed Lighting

Recessed Lighting Guide How To Select The Proper Housing Trim Recessed Lighting Layout Lighting Guide Kitchen Recessed Lighting

Pin On Lighting

Pin On Lighting

Most Current Photos Kitchen Lighting Placement Ideas Recessed Lighting Layout Kitchen Lighting Layout Kitchen Recessed Lighting

Most Current Photos Kitchen Lighting Placement Ideas Recessed Lighting Layout Kitchen Lighting Layout Kitchen Recessed Lighting

Pin On Living Room

Pin On Living Room

We Recommend Lightup Com For All Your Lighting Needs Basement Lighting Recessed Lighting Kitchen Lighting Design

We Recommend Lightup Com For All Your Lighting Needs Basement Lighting Recessed Lighting Kitchen Lighting Design

Uniform And Non Uniform Lighting Design Recessed Lighting Installing Recessed Lighting Recessed Lighting Trim

Uniform And Non Uniform Lighting Design Recessed Lighting Installing Recessed Lighting Recessed Lighting Trim

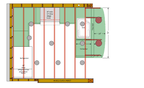
Full Kitchen Recessed Light Layout With Kitchen Table Recessed Lighting Living Room Kitchen Recessed Lighting Recessed Lighting Layout

Full Kitchen Recessed Light Layout With Kitchen Table Recessed Lighting Living Room Kitchen Recessed Lighting Recessed Lighting Layout

Pin On Kitchen Ideas

Pin On Kitchen Ideas

Recessed Lighting Spacing Recessed Lighting Light And Space Drop Ceiling Lighting

Recessed Lighting Spacing Recessed Lighting Light And Space Drop Ceiling Lighting

Lighting Tips High Hats Kitchen Lighting Design Kitchen Lighting Layout Kitchen Lighting

Lighting Tips High Hats Kitchen Lighting Design Kitchen Lighting Layout Kitchen Lighting

Pin On Master Bed And Bathroom

Pin On Master Bed And Bathroom

Source : pinterest.com